Te koop bij Zeeuwz Makelaardij
Groenendijk 43 Kloosterzande
Groenendijk ontstond in 1692 en de Groenendijk was oorspronkelijk de scheidingsdijk tussen de Zandpolder en de Mariapolder. Groenendijk is het buurtschap dat geleidelijk is vastgebouwd aan de kern Kloosterzande. Tegenover de in 1870 gebouwde neogotische basiliek en de naastgelegen pastorie ligt deze karakteristieke tussenwoning uit 1920.
Totaal aantal kamers
4
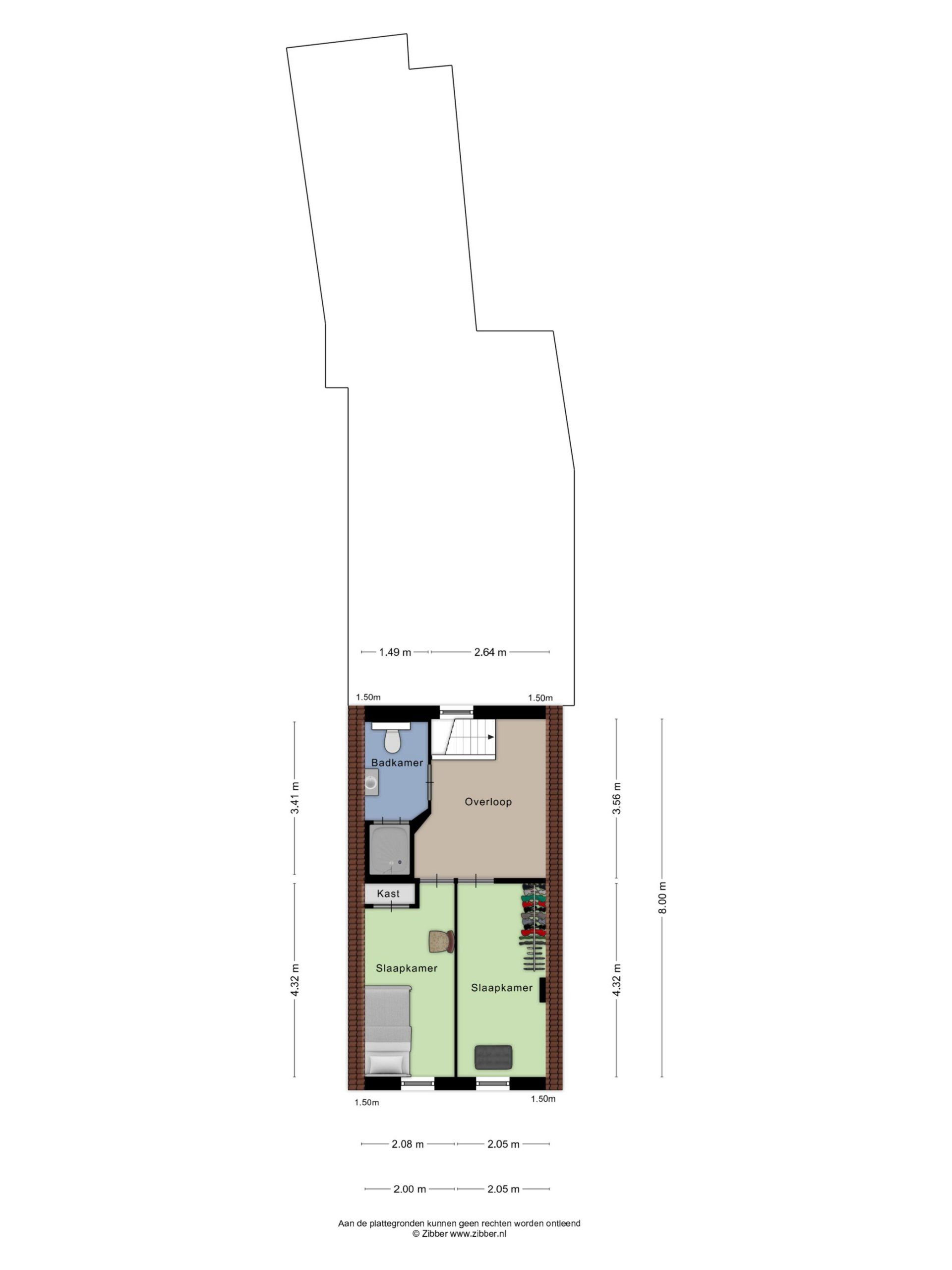
Slaapkamers
3
Inhoud woonruimte
490 m³
Perceelgrootte
427 m²
De woning is volledig gerenoveerd en uitgebouwd aan de achterzijde. Met een slaapkamer en badkamer op de begane grond kun je hier heerlijk gelijkvloers wonen. Boven vind je nog twee slaapkamers en een tweede badkamer. De houten kozijnen staan strak in de lak en de ramen op de begane grond aan de voorzijde zijn voorzien van rolluiken. Verder is de woning uitgerust met 10 zonnepanelen.
De tuin is ook een echte pareltje, hier geniet je de hele dag van de zon en je privacy. Recent hebben de eigenaars nog een stukje tuin bijgekocht aan de achterkant zodat er nu directe toegang tot het plein aan de Rozenstraat is aan de achterzijde, over eigen grond.
- Bouwjaar 1920
- geschakelde woning
- Gebruiktsoppervlakte 127 m²
- Perceel 427 m²
- volledig gerenoveerd
- binnenmuren opnieuw opgetrokken
- slaapkamer en badkamer op begane grond
- 3 slaapkamers
- 2e badkamer op verdieping
- Energielabel -G-
- houten kozijnen
- dubbelglas
- cv-ketel uit 2016
- gratis parkeren in de straat
- krachtstroom aanwezig
- Heerlijke tuin met veel privacy
- overdekte loungeplek
- vrijstaand tuinhuis en berging





































