Te koop bij Zeeuwz Makelaardij

Prins Hendrikstraat 21  Sint Jansteen

Midden in de kern Sint Jansteen staat deze leuke hoekwoning in de Prins Hendrikstraat. Deze straat ligt heel centraal en alle voorzieningen zoals sportvelden, Spar-supermarkt en school liggen dichtbij, ook café Lazarus en eetcafé de Kroon vindt je op loopafstand. Er is voldoende gratis openbare parkeergelegenheid in de straat, maar zelf parkeer je natuurlijk het liefst op je eigen oprit. 



197.500,-

BEZICHTIGEN ?

Totaal aantal kamers

4

Slaapkamers

3

Inhoud woonruimte

260 m³

Perceelgrootte

280



De hoekwoning uit 1956 is instapklaar en voldoet aan de woonwensen van deze tijd. Kunststof kozijnen met dubbel glas, rolluiken rondom, strak gestucte wanden en een moderne keuken van 2015. Vorig jaar is er een aluminium overkapping met verlichting en elektrische screen geplaatst en dit jaar een nieuwe schutting en vier zonnepanelen. Echt instapklaar dus!


Het centrum van Hulst ligt op een paar minuten fietsen en daar vind je ook de middelbare school. Op 2,5 km bevindt zich de grens met België en binnen een half uur sta je in Antwerpen en ook Gent is binnen een half uur te rijden. 



  • Lees verder

    indeling begane grond

    Bij binnenkomst sta je in de hal met meteen rechts de meterkast en links het toilet. Naast het toilet zit de vaste trap naar boven en rechtdoor loop je zo de keuken in. Net voor de keuken zit er onder de trap nog een kelderkast.


    De keuken is in 2015 volledig vernieuwd en uitgerust met een kookplaat met wokbrander, afzuigkap en ingebouwde vaatwasser. De vrijstaande koelkast verhuist mee met de huidige bewoner. Ook in de keuken nog een ruime ingebouwde kast voor extra voorraad en keukenspullen. De speelse tegelvloer loopt drempelloos door over de hele begane grond. 


    Via de keuken loop je de woonkamer in. De schouw is nog aanwezig, maar er zit geen haard meer in. Ook de schoorsteen is van het dak verwijderd. De wanden zijn strak afgewerkt en alle kozijnen in de woning zijn vervangen door kunststof exemplaren met HR-glas in 2017.


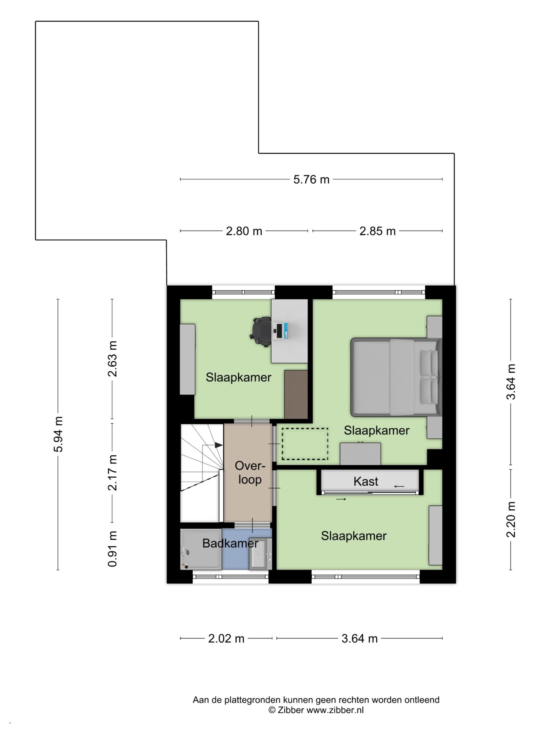
    indeling eerste verdieping

    Via de vaste trap in de hal kom je op de overloop. Hier vind je vier deuren naar de verschillende slaapkamers en badkamer. 


    Aan de voorkant van de woning zit de compacte badkamer met douche en wastafelmeubel, daarnaast een slaapkamer met een groot raam. Deze kamer doet nu dienst als kleedkamer maar zou ook een prima slaapkamer zijn. 


    Aan de achterkant nog twee slaapkamer waaronder de masterbedroom. De tweede slaapkamer is nu ingericht als thuiskantoor. 


    Ook op deze verdieping overal kunststof kozijnen met dubbel glas en een nette laminaatvloer in alle slaapkamers. Het toegangsluik met de vlizotrap naar zolder zit in de grootste slaapkamer.


    indeling tweede verdieping

    Zoals eerder vermeld kun je naar de zolder met de vlizotrap via de grootste slaapkamer. Deze ruimte voldoet perfect voor het stallen van spullen die je niet te vaak nodig hebt. De nokhoogte is hier minder dan 1.50 hoog, dus een extra slaapkamer is hier niet mogelijk.


    buitenruimte

    Aan de voorkant van de woning een onderhoudsvriendelijke ondiepe tuin met een kleine border voor wat planten of bloemen. 


    De achtertuin is gelegen op het zuidoosten en het is hier heerlijk genieten van de ochtendzon op de achtergevel en de middagzon in de loungeset achter in de tuin. De achtertuin is met het grasveld en de border met vaste planten onderhoudsvriendelijk en lekker zonnig. De vaste overkapping aan het huis van 3 meter diep is aan drie kanten dicht en hier geniet je al heel snel van het buitenleven. Fijne bijkomstigheid is dat je altijd droog naar garage en berging loopt. Verder is de overkapping voorzien van een elektrisch bedienbaar screen zodat je de zon van de achtergevel kunt afhouden en je hier lekker in de schaduw kunt zitten.


    In de berging en garage zit de wasmachineaansluiting en hangt de cv-ketel. Ook hangt er hier verwarming zodat je deze ruimte ook anders zou kunnen gebruiken dan opslag alleen. 


    Het voetpad dat naast de tuin en die van de buren loopt hoort voor de helft bij deze woning. Je verleent hier recht van overpad voor iedereen naar die het veldje achter de woning wilt, zoals je kunt zien op de kadastrale tekening geldt dit ook aan de achterzijde van de schutting aan de achterkant van de tuin. 


  • hoekwoning
  • centraal gelegen in Sint Jansteen
  • volledig gemoderniseerd
  • gebruiktsoppervlakte 70 m²
  • 3 slaapkamers
  • vrijstaande garage met berging
  • aluminium overkapping 3x6 meter






  • energielabel -D-
  • kunststof kozijnen met dubbel glas
  • 4 zonnepanelen
  • rondom rolluiken
  • achtertuin op zuidoosten
  • oprit met ruimte voor 2 auto's
  • gratis openbaar parkeren