Te koop bij Zeeuwz Makelaardij

Van Ceulenplein 7 Hulst

Centraal gelegen in de gezellige Dullaertwijk staat deze leuke, instapklare twee-onder-een-kapwoning in Hulst. 


€ 275.000,-

BEZICHTIGEN ?

Totaal aantal kamers

5

Slaapkamers

4

Inhoud woonruimte

397 m³

Perceelgrootte

221 m²


Met veel privacy en een beschutte achtertuin op het zuidwesten is het hier heerlijk wonen. Deze wijk is zeer gewild bij jonge gezinnen door de ruime opzet met veel speelmogelijkheden in de buurt. Basisschool de Nobelhorst en basisschool de Wereldboom liggen op loopafstand en ook cultureel centrum Den Dullaert en de voetbalvelden van HVV liggen letterlijk om de hoek. 


De gezellige binnenstad van Hulst vindt je op 5 fietsminuten en binnen 30 minuten sta je in het centrum van Antwerpen en Gent is binnen 40 minuten te bereiken. Kortom, een heerlijke plek om je kinderen groot te brengen en te genieten van al het leuks dat Hulst te bieden heeft. 


  • Lees verder

    indeling begane grond

    Je komt binnen in de hal. Hier vind je naast de vaste trap naar boven ook het toilet en de meterkast. De gemoderniseerde meterkast met voldoende groepen hangt in de hal. De houten dichte trap naar boven is recent voorzien van nieuw tapijt. Vanuit de hal loop je de open keuken in. 


    De keuken dateert van 2017 en is uitgerust met een 5-pits gaskookplaat met wokpit, afzuigkap, vrijstaande Amerikaanse rvs koelkast, ingebouwde combi oven/magnetron en een vaatwasser. Op de betonnen ondervloer ligt een mooie donkere tegelvloer die doorgelegd is in de hal. 


    De woonkamer is voorzien van een laminaatvloer en de kunststof kozijnen bevatten dubbel glas. Aan de achterzijde is het raam vervangen door een kunststof schuifpui zodat je, naast de achterdeur in de keuken ook vanuit de woonkamer, directe toegang tot de achtertuin hebt. Over de oude parketvloer is een nette laminaatvloer gelegd. 


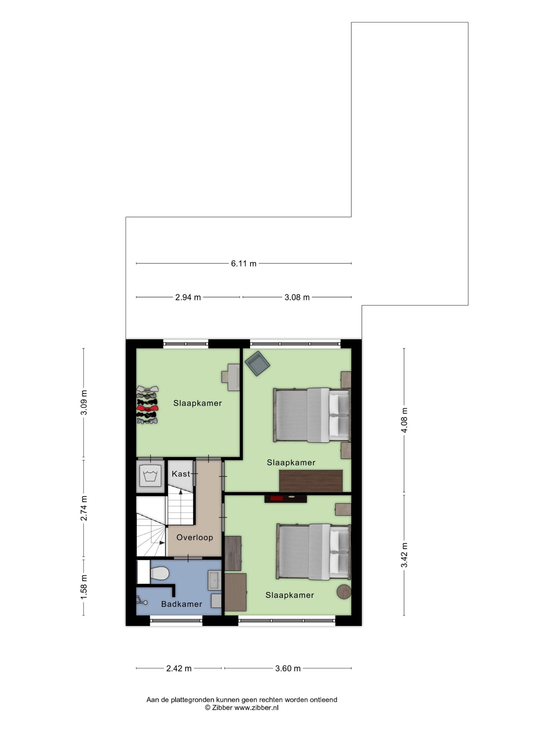
    Indeling verdieping

    Met de vaste trap bereik je de overloop vanwaar je toegang hebt tot drie slaapkamers en de badkamer. Ook op de slaapkamers zijn alle kozijnen vervaardigd van kunststof en voorzien van dubbel glas. Voor alle ramen in de slaapkamers zijn horren aanwezig. 


    In de kleinste slaapkamer aan de achterzijde is in de ingebouwde kast een wasmachine-aansluiting voorzien. Op zolder en in de schuur zit ook een wasmachine-aansluiting, je kunt dus kiezen waar je deze plaatst. Alle slaapkamers en de overloop zijn voorzien van een nette laminaatvloer. Onder de vaste trap naar zolder zit een kast voor extra bergruimte. 


    De badkamer is in 2017 vernieuwd. Hier zit nog wel het originele houten kozijn met enkel glas, maar de rest van de badkamer is geheel gerenoveerd. De badkamer is voorzien van een heerlijke regendouche, een wastafelmeubel, een moderne radiator en een tweede toilet. 


    Zolder

    Ook de vaste trap naar zolder is voorzien van tapijt. Op de voorzolder zit een aansluiting voor de wasmachine en hangt de AWB Thermo-elegance combiketel uit 2013. 


    De vierde slaapkamer is met een deur gescheiden van de voorzolder en voorzien van een groot dakraam. Het dak is geïsoleerd en er zijn knieschotten voorzien voor extra opbergruimte. Ook in deze ruime slaapkamer ligt een nette laminaatvloer. 


    Tuin

    Aan de voorkant van de woning een onderhoudsvriendelijke tuin met split en twee potten met siergras. 


    De achtertuin is gelegen op het zuidwesten en volledig ommuurd. Een houten poort geeft toegang tot de oprit en de garage heeft ook een toegangsdeur vanuit de tuin. In de tuin geniet je de hele dag van de zon en met een overkapping direct achter het huis én eentje achter in de tuin is het in deze beschutte tuin al heel vroeg in het seizoen heerlijk buiten zitten. 


    De overkapping achter in de tuin zorgt in de zomer dan weer voor een heerlijke schaduwplek. In de wijk vind je diverse speeltuintjes en trapveldjes. Direct achter het huis zit een speeltuintje dat je, zonder straten te moet oversteken, kunt bereiken.

  • Bouwjaar 1970
  • twee-onder-een-kapwoning woning
  • Gebruiktsoppervlakte 112 m²
  • Perceel 221 m²
  • Kunststof schuifpui
  • 4 slaapkamers
  • keuken vernieuwd in 2017
  • badkamer vernieuwd in 2017





  • Energielabel -C-
  • kunststof kozijnen
  • dubbelglas
  • Dak geïsoleerd
  • Combiketel 2013
  • Heerlijke tuin met veel privacy
  • Oprit met ruimte voor 2 auto's
  • Kindvriendelijke wijk


Neem contact met ons op